APT-50/70+EPS电子动力转向
NOVELTEK
产品类型: 电动堆高机与电动拖板车
型号: APT-50/70+EPS
驱动方式: 交流电AC无段全电动(重型)
主要特点:
多功能仪表板: 配置进口多功能综合电表与CAN-BUS系统,清楚显示车子使用状态,包括电瓶电量、工作小时、故障代号及低电量保护功能。
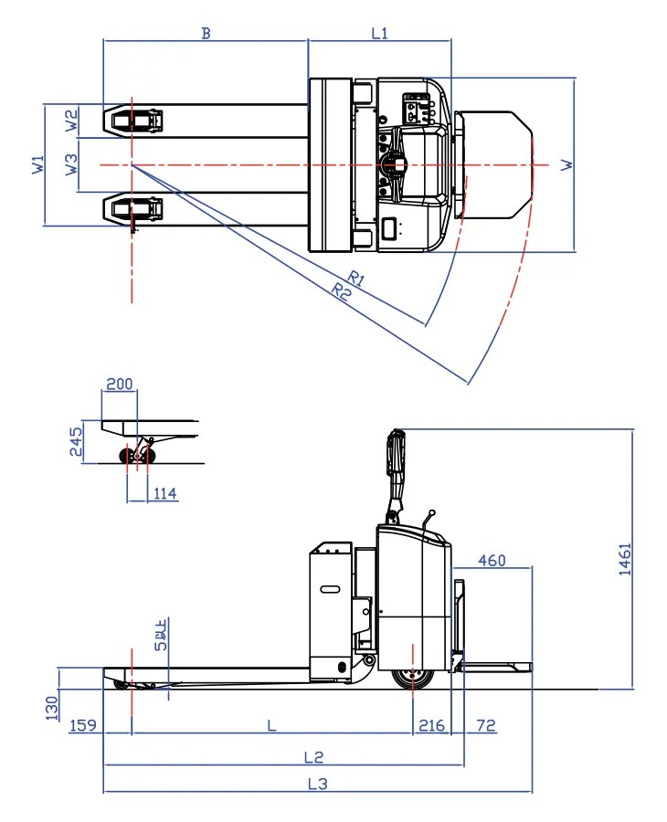
EPS电子转向: 拥有EPS电子转向功能,轻巧灵活,转向角度达185度。
智能速度控制: 行车转弯时,车速自动减速50%,提高操作安全性。
AC变频电路控制: 新式AC变频电路控制系统,实现平稳、省电、安静、干净的运行。
可调车速: 车速可输写调整,以满足不同应用场景的需求。
耐久外观: 无铅烤漆涂装,提供耐锈防腐蚀的外观保护。
堆高机专业电瓶: 配备堆高机专业用产业电瓶,确保可靠的电力供应。
客制化订制: 提供客制化订制服务,以满足客户特定需求。



在重型工业与大型制造业的物流链中,5吨至7吨的超重物料搬运一直是极大的挑战。传统的搬运方式不仅效率低下,更伴随着高度的职业安全风险。恆智重机作为台湾搬运设备的领导者,研发出 APT-50 与 APT-70 交流电 AC 无段全电动拖板车,专为应对钢模、大型捲料、重型机械组件及大容量原料而生。
这款重型拖板车结合了顶尖的 EPS 电子动力转向技术与先进的 CAN-BUS 智慧控制系统,彻底改写了重型物料移动的定义,让超重搬运也能展现优雅与灵活性。
APT-50 与 APT-70 的核心大脑採用了进口多功能综合电表,并整合了工业级 CAN-BUS 系统。这项技术能大幅减少车体线路的复杂度,降低故障率并提升数据传输效率。
操作人员可以透过仪表板清晰掌握车辆的即时状态,包括电瓶剩余电量、累积工作小时,以及各类故障代号。特别是内建的低电量保护功能,能在电量不足时自动启动保护机制,避免电瓶因过度放电而造成永久损害,有效延长昂贵耗材的使用寿命。
对于 5.0 吨甚至 7.0 吨的重型设备来说,转向阻力是操作员最大的负担。恆智重机全系列标配 EPS(Electric Power Steering)电子转向系统,这项配置让原本沈重的机械转向变成了轻盈的电子操控。
185 度的超大转向角度,让这台重型拖板车在狭窄的厂区通道或货柜内也能展现惊人的灵活性。其轻巧的操控力,即便是女性操作员也能毫不费力地精准定位,实现了劳动力多元化与职场友好的品牌承诺。
安全是重型搬运中不可妥协的底线。APT-50 与 APT-70 在软体控制上加入了智慧安全逻辑:当车辆执行转弯动作时,系统会自动感测转向角并将车速降低 50%。
这项功能有效解决了重型物料在转弯时产生的强大离心力问题,防止货物因惯性位移或车体侧翻的风险,保护操作人员、货物以及周边环境的安全。
採用最新研发的 AC 交流驱动系统,不仅带来了无段变速的平稳感,更在节能与环保上取得了突破。
交流马达无碳刷的特性,意味着更低的维护成本与更长的保养週期。其运转过程极其安静且干净,完全不会产生碳粉污染,非常适合食品厂、制药厂或精密电子厂等对环境卫生要求极高的场域。此外,车速可根据客户作业习惯进行写入调整,提供真正的量身定制体验。
为了应对严苛的工作环境,APT-50 与 APT-70 採用了无铅烤漆涂装,不仅符合环保规范,更具备优异的耐锈与防腐蚀能力。核心动力源採用堆高机专用的产业电瓶,确保在高强度作业下仍能维持长效的输出能力与循环寿命。
这款重型拖板车不仅在标准配置上领先业界,更提供多样化的选配项目以满足不同产业的特殊需求:
标准规格:
载重能力:5.0 吨或 7.0 吨。
电力系统:AC 交流无段变速。
转向系统:EPS 电子动力转向。
多元选配件:
货叉客制化:长度可加长至 2600 毫米,宽度可加宽至 1000 毫米,适用于超大型机械底座。
安全警示:可加装蜂鸣器与警示灯,提升忙碌厂区的安全能见度。
白铁车身:针对化工、盐害环境或食品加工业,提供不锈钢(白铁)车身选配,全面防腐蚀。
冷冻型改装:可选配负 35 摄氏度冷冻专用规格,确保在极端低温的冷链物流中运行无阻。
APT-50 与 APT-70 广泛应用于以下领域:
重型机械制造:用于搬运大型工具机、模具及铸件。
钢铁与金属工业:处理重型钢捲、板材或金属原料。
造船与航太工程:辅助重型零组件在装配线间的精准移动。
能源与电力产业:搬运大型变压器或发电机组。
恆智重机股份有限公司成立于台湾,致力于研发高性能、高品质的电力搬运设备。我们拥有一流的研发团队,能针对客户的特殊需求提供全方位的客制化服务。从苗栗总部出发,我们的产品行销全球,是您提升仓储效率与工业安全最信赖的合作伙伴。
Q1:5吨以上的载重对于地面要求很高吗?
A1:重型拖板车在负载时会产生较大的地面压力。我们建议在平整的水泥地或环氧树脂(Epoxy)地面使用。若地面条件较特殊,我们的业务专员可协助建议合适的轮胎材质以分散压力。
Q2:AC 马达与传统 DC 马达相比,最大的好处是什么?
A2:AC 马达能量转换效率更高,更省电。最重要的一点是它没有碳刷耗材,大大降低了长期持有的维护成本。
Q3问:这款车可以调整行驶速度吗?
A3:可以。透过控制系统,我们可以根据客户的厂区安全规范,为您写入设定最高时速。
Q4:如果我需要搬运超大尺寸的栈板,该机型适用吗?
A4:APT-50 与 APT-70 的强大结构支持货叉加长加宽的客制化,最长可达 2600 毫米,足以应对多数非标准规格的搬运需求。
如果您对 APT-50 或 APT-70 有进一步的技术谘询或报价需求,欢迎与恆智重机联系。
公司名称:恆智重机股份有限公司
总部地址:台湾苗栗市水源里水流娘 16-1 号
谘询电话:+ 886-37-220741
传真电话: +886-37-226152
官方邮件:info@noveltek-forklift.com
官方网站:https://www.noveltek-forklift.com
恆智重机,与您一起创造更高效、更安全的物流未来。