| 状态: | |
|---|---|
| 数量: | |
PPS-09/10/15/20 AC/DC
NOVELTEK
领航仓储自动化:PPS 系列自走式全电动堆高机 (0.9吨 - 2.0吨) 深度解析


在现代工业与物流体系中,搬运效率直接决定了企业的竞争力。恆智重机推出的 PPS 系列自走式全电动堆高机,不仅是一台搬运工具,更是提升仓储週转率、保障人员安全与符合绿色环保趋势的整合型方案。
本系列涵盖了 0.9 吨、1.0 吨、1.5 吨及 2.0 吨四种主流载重规格,并提供 AC 交流与 DC 直流两种动力选择,针对台湾狭窄巷道与各类特殊作业环境(如冷冻库、高架仓库)进行优化。
AC 交流马达: 採用无碳刷设计,大幅降低维护成本与频率。其特点在于省电效能极佳,且动力输出平稳,适合长工时、高频率的作业环境。
DC 直流马达: 具备强大的启动扭力,对于需要瞬间大推力的重载环境表现优越。
车体内部加装了 三个高强度避震弹簧,这套悬吊系统允许驱动轮随地面起伏上下位移达 45mm。这意味着即使在地面稍微不平整的情况下,主轴仍能紧贴地面,避免空转,并将荷重压力分散至平衡轮,使操作者转向时感到无比轻巧。
升降桅桿是堆高机的灵魂。PPS 系列採用 西德 HOESCH 一体成形热滚锻型钢。相较于市面上常见的槽铁焊接,这种工艺能提供更高的抗弯强度,即使在举升至 3.5 米的高位时,依然能确保结构不变形,大幅提升安全性。
搭载 MOSFET 电路控制系统,提供无段变速功能。这不仅让起步与停止更加平滑,减少货物晃动,更能延长电池使用寿命,让电力使用更精准。
PPS 系列的设计充分考虑了多样化的工业场景:
冷冻型选配: 可在 零下 35°C 的环境下正常运作,所有电路与液压系统均经过防寒处理,是低温物流中心的最佳战友。
货柜型桅桿: 提供三节式桅桿选配,让堆高机能够在低顶距的货柜内自由作业,同时兼顾高架仓储的扬升高度需求。
狭窄巷道优化: 车身设计短巧,可在 2.1 米 的巷道内灵活迴转,大幅增加仓储空间的配置弹性。
自动降速功能: 当货叉举升高度超过 3 米时,系统会自动启动安全开关,强制将行车速度降低 30%,防止高重心导致的翻车风险。
电磁弹簧压力剎车: 採用欧洲原装进口马达,当方向感应桿处于垂直或水平位置时,剎车会立即自动锁死,在坡道作业时尤为重要。
无铅 PU 烤漆: 全车採喷砂处理后进行多层高品质烤漆,不仅耐腐蚀,更符合现代环保规范,适用于食品加工或制药业等要求严格的场所。
不同于一般市售汽车电瓶,PPS 系列配备高容量 产业专用电瓶:
长效续航: 充电 8 小时,可满足标准 8 小时工作天。
卓越寿命: 使用寿命长达 5 年,是普通 EB 级电瓶的 3 至 7 倍,为企业节省巨额的耗材重置费用。
Q1:PPS 系列适合什么样的地面环境?
A:由于配备了悬吊系统与四个荷重轮(採跷跷板结构设计),PPS 系列在室内环氧树脂地面、水泥地或稍微不平整的仓储地面均能表现平稳。其底叉扬升功能可达 205mm,爬坡力强,甚至能同时搬运两个单面栈板。
Q2:AC 交流马达与 DC 直流马达该如何选择?
A:如果您重视「低维护成本」与「省电」,建议选择 AC 型;若您的作业环境需要频繁启动大负载货物,DC 型的强力扭力则会是更好的选择。
Q3:这台车操作会很费力吗?
A:不会。PPS 系列配备了「氮气回復避震式踏板」,操作员可站立操作以减轻疲劳。此外,由于避震弹簧分散了重量,转向把手非常灵活,即使是女性操作者也能轻松上手。
Q4:恆智重机的产品有保固吗?
A:恆智重机提供完善的原厂保固与售后技术支持,并拥有专业零件储备,确保您的生产线不因维修而长期停滞。
选择恆智重机 PPS 系列,就是选择安全与专业。
我们提供客制化订制服务,无论是特殊桅桿高度、冷冻环境需求或特定的载重规格,我们的顾问团队都能为您规划最合适的方案。
谘询专线: +886-37-220741
电子邮件: info@noveltek-forklift.com
工厂地址: 台湾苗栗市水源里水流娘16-1号
PPS-10/15/18/20 自走式全电动堆高机
● 载人、自走、省力

● 安静、安全、耐用
● 无污染
● 全车採最高级无铅PU烤漆,耐锈耐用
● 可靠性高、电动升降
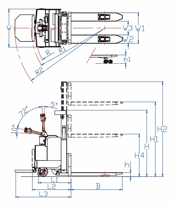
● 底叉昇扬205mm, 爬坡力强并可同时举升两个单面栈板作业
● 扬高:2米至6米,三节式货柜型等,可选配订制
● 冷冻型适合零下35℃之冷冻库使用
● 另有零下35℃冷冻库及无尘室专用不锈钢车型可供选配
● 货叉举高3米以上时,为了人、货安全,特加装安全慢速开关,让行车速度降速30%


车体内加装三个避震弹簧,行进间增加车身的稳定及平衡,并使驱动轮可因路面情况,而上下位移最多达45mm,永保主轴贴地性。装载货物时,避震弹簧将荷重压力合理分散至平衡轮上,使得方向操纵桿轻巧灵活,易于操控。
採一贯作业生产,车身经喷砂处理及多层高级无铅 PU烤漆,耐锈蚀与耐用性高。可适用于任何恶劣的工作场所。
全车使用特别牢固之钢板焊接而成,即使承受重压或撞击时,仍可维持车身结构之完整。
无污染的全电动操作可节省人力、时间,并可保持工作场所之安静与干净,为先进环保产品(Green Products)。
升降桅桿使用西德HOESCH一体成形之热滚锻型钢,其安全性较一般槽铁高出数倍。
车后左右各有一个平衡轮,可增加平稳度并避免车体晃动导致货物倾倒。
货叉前方左右各有两个货叉轮,採跷跷板式的结构设计,可自动调整前轮重心,永保两轮贴地性,可承载高荷重,而不易破损。