| 状态: | |
|---|---|
| 数量: | |
FBR-10/15/20 AC+EPS
NOVELTEK
在现代智慧仓储与自动化物流的浪潮下,企业对于搬运设备的要求早已超越单纯的「载重」。节能效率、空间利用率以及操作安全性,成为评估设备投资报酬率(ROI)的核心指标。恆智重机(NOVELTEK)推出的 FBR 系列(1.0 / 1.5 / 2.0 吨)桅桿前移型电动堆高机,正是专为窄巷道作业与高频率物流转运量身打造的解决方案。
FBR 系列最显着的升级在于其驱动与操控系统的革新。
AC 交流变频无碳刷马达:
相较于传统直流(DC)马达,AC 马达免除了更换碳刷的保养成本。其能量转换效率更高,不仅让行驶与举升更加平顺,更能在同样的电瓶电量下,延长 30% 以上 的工作时间。这对于多班制运作的物流中心而言,能显着降低充电频率与能源成本。
EPS 电子动力转向系统:
传统机械转向在负重时操作沈重且反应迟缓。FBR 配备的 EPS 系统,让操作者仅需极小的力量即可精准控制转向角度。配合 185 度的操控总弧度,赋予了这台机器在狭窄货架间极佳的灵活性。
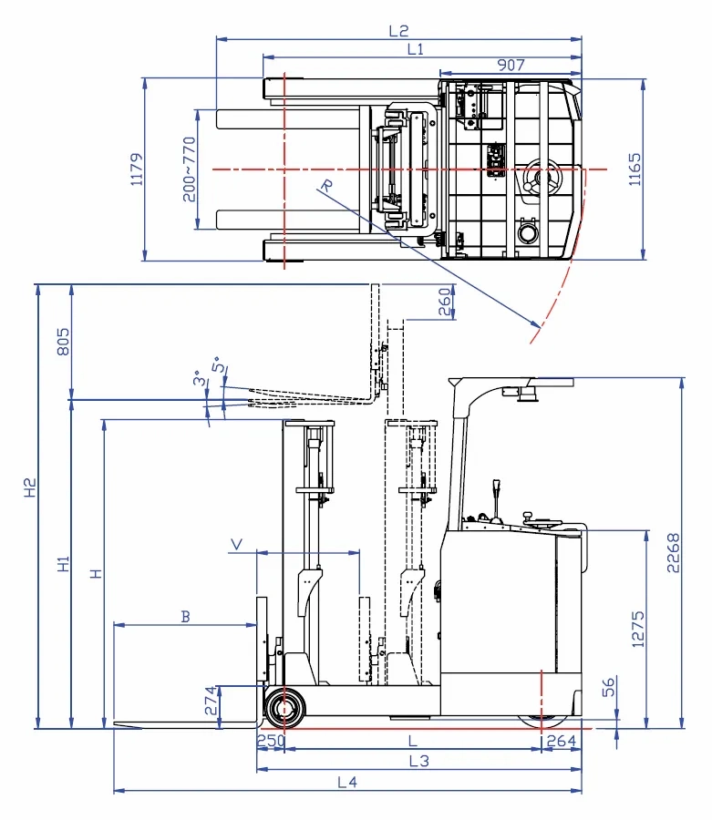
FBR 系列採用桅桿前伸/后缩设计。当桅桿缩回时,车身全长显着缩短,配合 1.0 吨机型仅 1,700mm 的最小迴旋半径,使其能够在极窄的巷道内轻松迴转与取货,这比传统平衡重式堆高机节省了近 40% 的作业空间,直接提升了仓库的储位密度。
转向自动减速功能:当车速较快时进行转向,系统会自动感测并将速度降低 50%,有效防止重心偏移导致的侧翻风险。
高位限速开关:当货叉举升超过 3 米时,为了确保人货安全,系统会强制开启慢速模式,将行驶速度降低 30%,避免高位运作时晃动过大。
恆智重机採用德国 HOESCH 一体成形热滚锻专用型钢。这种高强度材料能确保在高负载、高举升的情况下,桅桿依然稳固不变形。全车喷涂高级无铅 PU 烤漆,抗锈蚀能力强,符合现代企业的 ESG 环保採购标准。
在 B2B 制造与工业设备领域,内容的权威性与信任度是转单的关键:
Experience(经验):本机型整合了冷库(Cold Storage)与无尘室(Clean Room)的选配设计,显示制造商深耕食品物流与半导体电子产业的实务经验。
Expertise(专业):产品规格参数(如荷重中心 500mm、20% 爬坡能力、AC 无段变速系统)皆符合 ISO 与国际工业搬运标准,展现技术研发的深度。
Authoritativeness(权威):恆智重机作为台湾在地生产制造商,拥有完整的售后服务链与客制化能力(客制化机型订制),在工业搬运设备领域具有标竿地位。
Trustworthiness(信任):透明的规格表、详细的马达功率(4KW 行走/12KW 举升)以及原厂联络资讯,为採购决策者提供可靠的评估依据。



Q1:FBR 系列适合在什么样的地板作业?
A1:本系列全车採用 PU 胶轮,具有高抓地力且不会在地面留下黑色轮痕,特别适合用于环氧树脂(Epoxy)地面、连锁砖或涂装地板,常见于无尘室与高阶物流仓库。
Q2:如何更换电瓶?是否支援 24 小时作业?
A2:FBR 採用侧拉式电瓶设计,使用另一台堆高机或换电台架即可快速抽换电瓶。若企业有 24 小时运作需求,可加购备用电瓶进行轮换。
Q3:这台车可以客制化桅桿高度吗?
A3:可以。标准二节式桅桿提供 2000mm 至 4000mm 的举升高度。若您的仓库有低门槛限制或需进出货柜,可选配「二节式货柜桅桿」,在保持较低车高的同时拥有较高的自由扬程。
Q4:维护保养会很麻烦吗?
A4:不会。受惠于 AC 交流马达技术,您无需检查或更换碳刷。主要的维护重点在于液压油更换、链条润滑以及电瓶补水(若使用铅酸电瓶),大幅减少了停机时间。
您正在寻找能提升空间效率、降低维护成本的搬运方案吗?
恆智重机 FBR 系列电动堆高机,提供 1.0 吨至 2.0 吨完整规格,支援客制化特殊机型订制。无论是极低温冷链环境,或是高洁净度的无尘作业,我们都能为您提供最适合的配置。
立即拨打谘询热线:+886-37-220741
索取详细规格报价:info@noveltek-forklift.com
浏览更多案例:www.noveltek-forklift.com
恆智重机股份有限公司
台湾制造,行销全球的物流搬运专家。